Projects
People
About Us
Contact
Projects
People
About Us
Contact
Menu
Projects
People
About Us
Contact
Show all
Strategic
Masterplanning
Housing
Private Homes
Commercial
Heritage
Bishopton
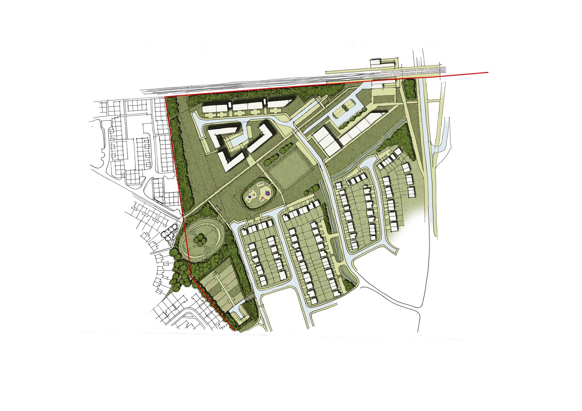
Wynyard Woods / Fallows Park
Denwick Workshop
Marine Avenue
Montague Avenue
Bellway PLC Head Office Conversion
Story Homes Head Office, New Build Competition
West Wing
Story Home Head Office Conversion
Stainsby Hall Farm
Wynyard Commercial Units
Arcot Grange, Cramlington, Northumberland
Nixons Kitchens
Chatton Conversions
Brancepeth
Sheraton Hall 2
Callerton Park, Newcastle
Croft
Footbridge, Yarm
Forth Yards, Newcastle
Private House
Gilling West
Green Lane, Yarm, North Yorkshire
Lesbury
Heaton Down Yard, Newcastle
The Walled Garden
Five Mile Park, East Wideopen, North Tyneside
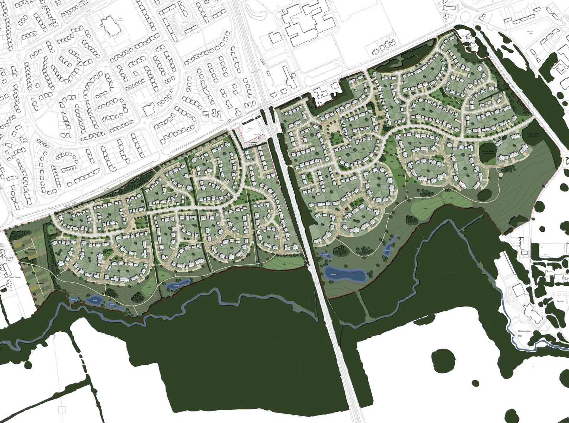
Killingworth Moor, North Tyneside
Lambton Park, Durham
Whitehouse Farm, Killingworth, North Tyneside
Land at Heathall, Dumfries
Affordable Housing
Ashwood Lodge
Langley Park, Durham
Murton, North Tyneside
Quay Timber
St. Edmund’s Manor, Sedgefield, County Durham
The Woodlands, Shotley Bridge, County Durham
Trinity South
West Shiremoor, North Tyneside
Wheatridge Park, Seaton Delaval, Northumberland
Windy Nook
Benton Cottages
Freight Depot
Bellway PLC New Worker’s Cottage