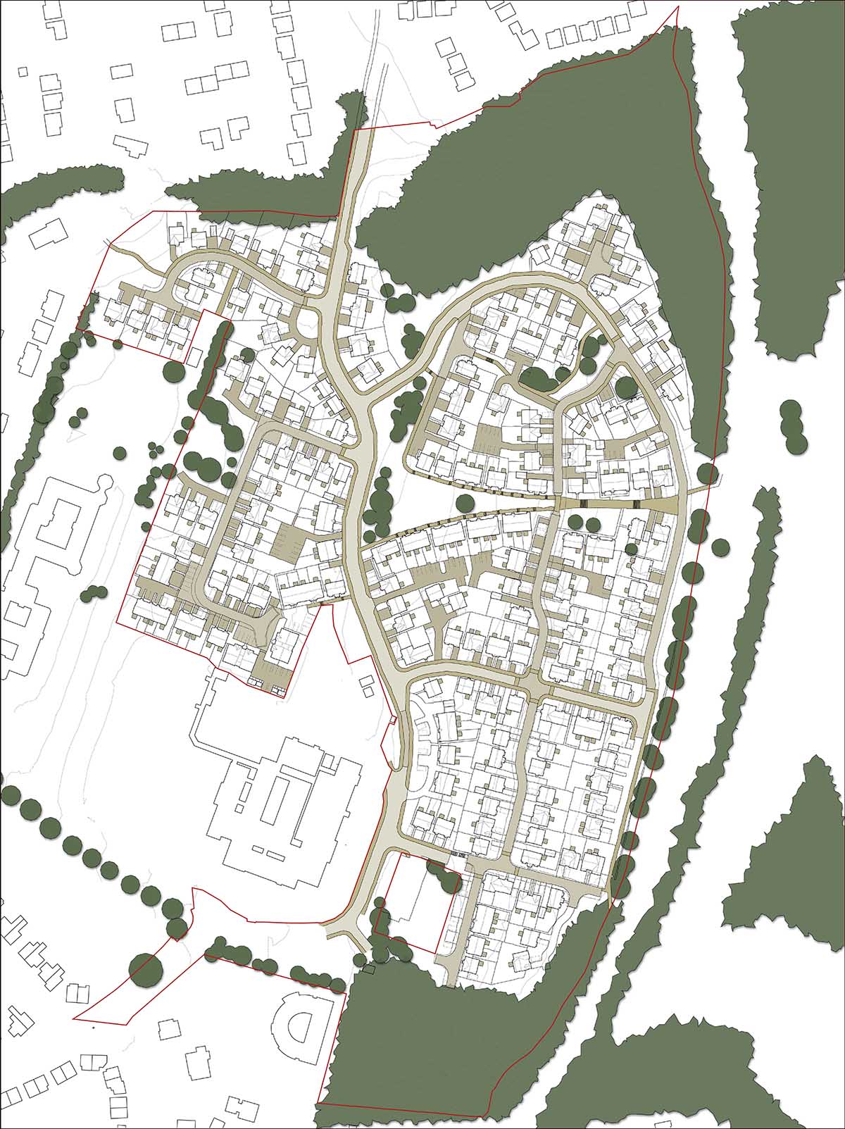
The Woodlands

Client: Story Homes

Location: Shotley Bridge, County Durham

Key to the success of this 240 home development was to ensure site constraints were translated into defined site opportunities. The site features a steeply sloped development platform which provides fantastic westerly views. Working with site topography the development 'cascades' from east to west, with a scalloped open space located at the heart of the scheme taking advantage of westerly views. A key challenge was applying Lifetime Homes Standards and methodology to a site with pronounced gradients. The design ensures that the majority of trees to the northern and southern boundaries were retained and celebrated as part of development proposals. Internal to the site a number of smaller 'pocket parks' were created around important tree groupings, with supplementary planting enhancing bio-diversity. The development is considered a positive addition to the area, allowing connection to the Derwent Walk to the northern boundary and providing increased levels of security on to the route through good levels of natural surveillance.