Killingworth Moor, North Tyneside

Client: Network Rail

Location: North Tyneside

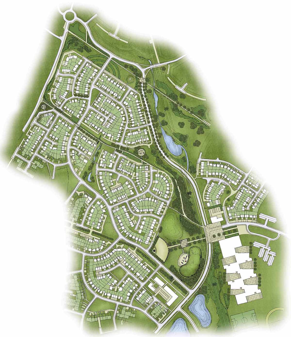
Killingworth Moor forms a key strategic allocation of the emerging North Tyneside Local Plan providing approximately 2000 homes, a new secondary school in addition to both commercial and industrial development. Pod were initially instructed by the development consortia to provide promotional and visioning material and to ensure masterplan proposals were progressed with key stakeholders including North Tyneside Council and ATLAS ( The Advisory Team for Large Applications).
Post allocation, pod are working on a number of detailed and outline applications to ensure development proposals accord fully with the core tenets of the masterplan vision. Key development considerations include providing a meaningful village centre, successful integration of existing and proposed landscaping and the translation of the potential constraints into defined development opportunities. A cohesive edge study will ensure a considered response to existing housing, respectful of both privacy and amenity.