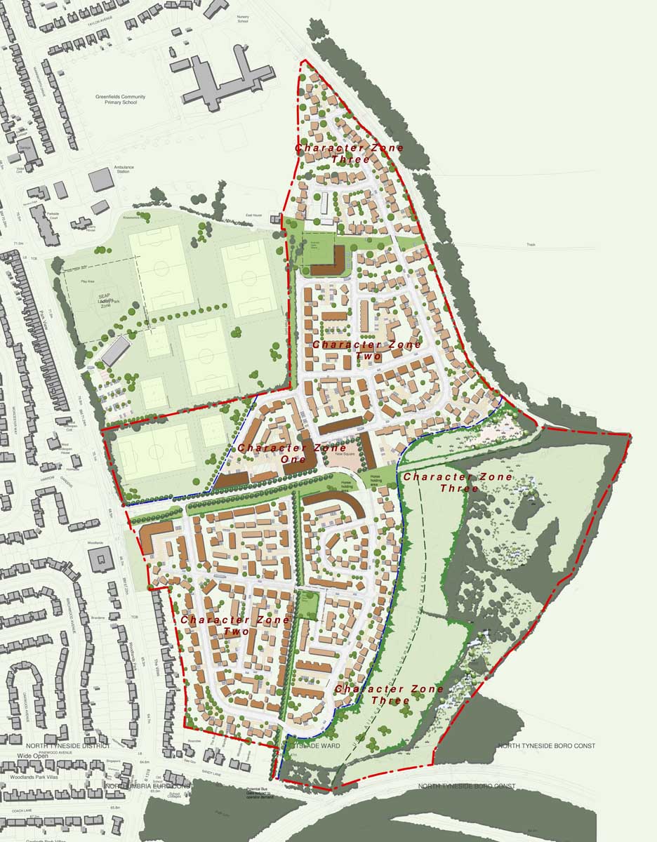
Five Mile Park

Client: Bellway Homes

Location: East Wideopen, North Tyneside

A development of 330 dwellings, including a 51 unit apartment hybrid care scheme, with planning permission secured through Public Enquiry. Key development considerations include integration of existing landscape features, including ensuring re-hydration of fen areas to the eastern boundary. A driver of design was to promote and enhance pedestrian connectivity through the site with historic Waggonways and connections to the Weetslade Country Park. The design of the Hybrid unit, a sheltered accommodation block with the ability to convert to an extra care facility, was formulated and designed in conjunction with North Tyneside Council. In regard to character, Pod worked closely with the council’s urban design officer to achieve a contextual, bespoke housetype range, which is reflective of Victorian properties located near to the scheme.