Client: Consortia

Client: Consortia
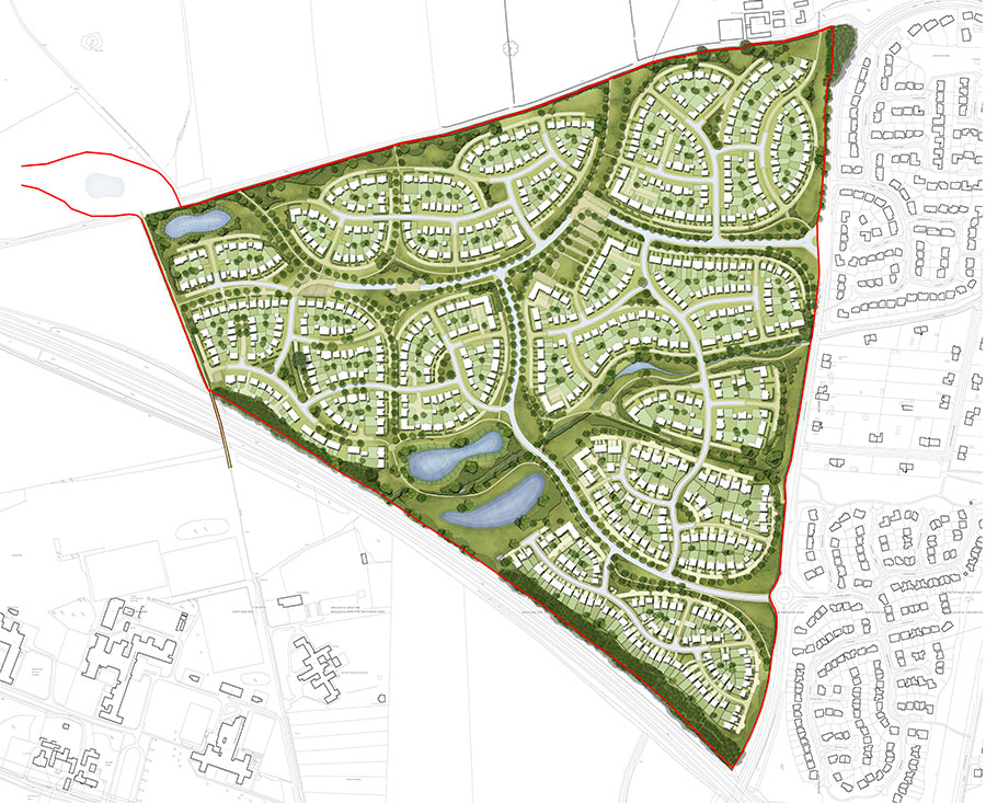
Location: Newcastle
Pod were initially engaged to prepare a concept masterplan and visioning document suitable to achieve the allocation of the development site, with the aspiration to provide for a Lower, Middle and Upper Callerton ‘Village’, with each area responding to individual development constraints and site context. Pod subsequently prepared a design code adopted by the local authority, allowing a number of smaller detailed, hybrid and outline applications to be delivered as part of an agreed holistic masterplan framework.








