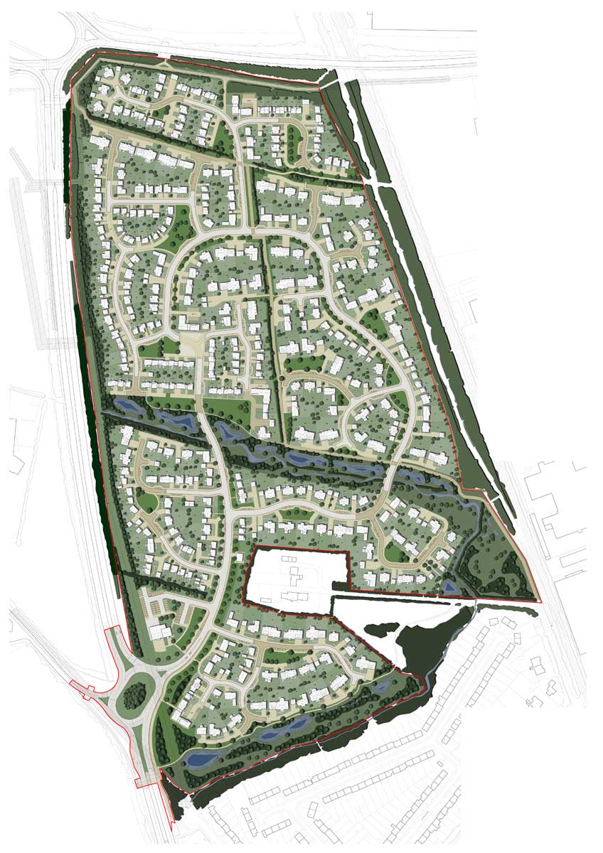
Whitehouse Farm

Client: Bellway Homes

Location: Killingworth, North Tyneside

Whitehouse Farm is a mixed use development including 366 dwellings located within Killingworth, North Tyneside. The development is designed as an 'executive home' development whereby larger dwelling forms are complimented and enhanced by generous dwelling to plot ratios and large areas of open space. These open spaces form key green linkages throughout the development site. An important aspect to development proposals was the desire to create four distinct yet complementary character zones with historical reference points to existing dwellings both within and in close proximity to the site. A defined 'village hub' is located at the heart of the development site with aspect over an existing wildlife corridor. The hub features a high density continuous frontage line, incorporating apartments and houses overlooking a central public open space.